- Woonoppervlakte
- Circa 156 m²
- Perceeloppervlakte
- Circa 290 m²
- Bouwjaar
- Gebouwd in 1921
- Aantal kamers
- 4 kamers (3 slaapkamers)
Indeling
Begane grond:
Hal/entree met toegang tot de ruime woonkamer. De woonkamer is afgewerkt met een moderne visgraat PVC-vloer. Authentieke elementen zoals gebinten en het balkenplafond zijn behouden gebleven en geven de ruimte karakter. De pelletkachel is aangesloten op de cv-installatie en draagt bij aan een efficiënte verwarming van de woning.
Vanuit de woonkamer is er toegang tot de dichte, moderne keuken met achterdeur naar de tuin. Aansluitend bevinden zich het toilet en de trapopgang naar de verdieping.
Via de hal is de badkamer bereikbaar, evenals de garage/berging met daarachter een separate kantoorruimte. De badkamer is uitgevoerd met een dubbele wastafel en een ruime inloopdouche.
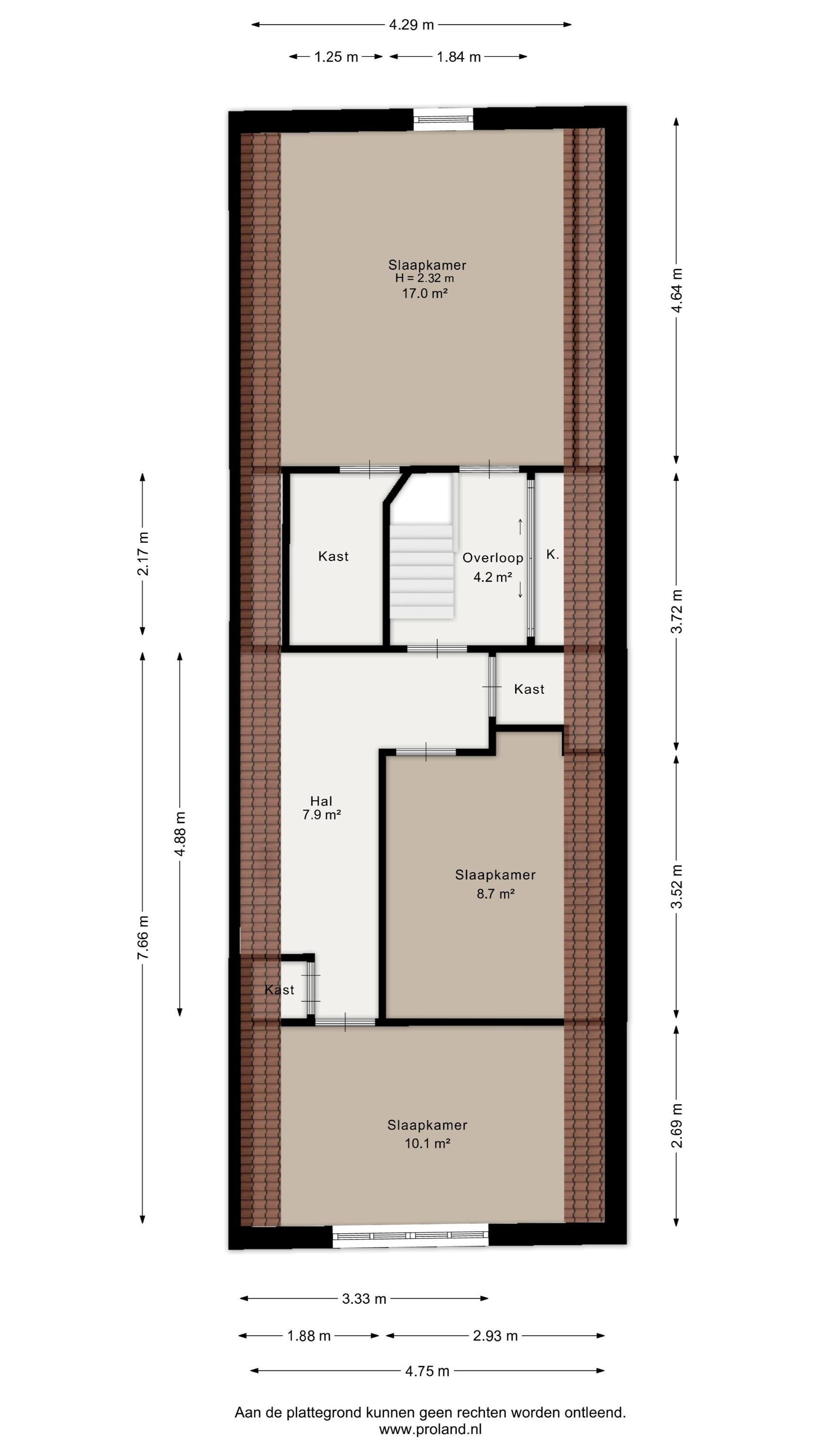
Verdieping:
Overloop met toegang tot drie slaapkamers van circa 17 m², 8,7 m² en 10 m². De grootste slaapkamer is voorzien van airconditioning en een inloopkast. Op de overloop is daarnaast extra bergruimte aanwezig in vaste kasten.
Tuin:
De omsloten achtertuin biedt volop privacy en is mooi aangelegd met groen en kleurrijke beplanting. Achterin staat een gezellige houten veranda, perfect om te relaxen, met een handige berging ernaast.
Ligging
Gelegen aan de rand van Tuk, op korte afstand van Steenwijk. Dagelijkse voorzieningen, het NS-station en uitvalswegen richting Zwolle, Heerenveen en Meppel zijn goed bereikbaar.
In de omgeving liggen natuurgebieden zoals de Woldberg en De Weerribben, met diverse mogelijkheden om te wandelen en fietsen.
Overdracht
- Vraagprijs
- € 400.000 k.k.
- Status
- Beschikbaar
- Aanvaarding
- Per 01-06-2026
Bouw
- Object type
- Eengezinswoning, vrijstaande woning
- Soort bouw
- Bestaande bouw
- Bouwjaar
- 1921
- Soort dak
- Zadeldak
Oppervlakte en inhoud
- Woonoppervlakte
- 156 m²
- Perceeloppervlakte
- 290 m²
- Inhoud
- 542 m³
- Externe bergruimte
- 5 m²
Indeling
- Aantal kamers
- 4 kamers (3 slaapkamers)
- Aantal badkamers
- 1 badkamer
- Badkamervoorzieningen
- Dubbele wastafel, inloopdouche
- Aantal woonlagen
- 2 woonlagen
- Voorzieningen
- Dakraam, glasvezel kabel, zonnepanelen
Energie
- Energielabel
- B
- Energielabel registratie
- 07-03-2023
- Isolatie
- Dakisolatie, muurisolatie, vloerisolatie
- Verwarming
- Cv-ketel, pelletkachel
- Warm water
- Cv-ketel
- Cv ketel
- Intergas combiketel gas gestookt uit 2012 (eigendom)
Buitenruimte
- Ligging
- Aan rustige weg
- Tuin
- Achtertuin
- Afmetingen achtertuin
- 176 m² (16 meter diep en 11 meter breed)
- ligging tuin
- Gelegen op het oosten
Bergruimte
- Schuur / berging
- Aangebouwd steen
Garage
- Soort garage
- Geen garage
Energieverbruik in Tuk
Energielabel deze woning
Energielabel B
Publicatie energielabel: 07-03-2023
Stroomverbruik per jaar
(Gemiddelde vrijstaande woning in Tuk)
Gasverbruik per jaar
(Gemiddelde vrijstaande woning in Tuk)
* Cijfers zijn afkomstig van het CBS en bedoeld als indicatie en kunnen verschillen voor deze woning
Indicatie hypotheeklasten
Eigen inleg:
Spaargeld / overwaarde
Rente:
Laagste 10-jaars rente
Laagste 10-jaars rente
2,78% - Centraal Beheer - NHG
3,04% - Centraal Beheer - 80%
Laagste 20-jaars rente
3,29% - Centraal Beheer - NHG
3,52% - Centraal Beheer - 80%
Laagste 30-jaars rente
3,41% - Centraal Beheer - NHG
3,7% - Argenta - 80%
Hypotheek:
Bruto maandlasten: € 0 p/m
Netto maandlasten: € 0 p/m
Hoe berekenen we dit?
Het rentepercentage is gebaseerd op de laagste 10 jaars vaste rente voor één hypotheekdeel. De vermelde rente (2.78% met NHG) is gecontroleerd op 03-04-2026. Deze berekening is gebaseerd op een annuïteitenhypotheek die volledig wordt afgelost, waarbij de maandlasten gedurende de gehele looptijd gelijk blijven. De werkelijke rente en netto maandlasten kunnen variëren, afhankelijk van uw persoonlijke situatie en de hypotheekverstrekker. Raadpleeg een financieel adviseur voor een nauwkeurige berekening en advies. Aan deze berekening kunnen geen rechten worden ontleend; het dient enkel als indicatie.
Documentatie
Kadastrale kaart
Leefomgeving
Brochure
Plattegronden PDF
WOZ waarderapport
BAG uittreksel
Bezoek onze website
Bezichtiging
Bod uitbrengen
Waardebepaling
Zoekopdracht
Alles downloaden
Zonnegrenzen bekijken
Inwoners in Tuk
Cijfers voor postcodegebied 8334
- Totaal aantal inwoners
- 2150 inwoners
- Mannen
- 51%
- Vrouwen
- 49%
Inwoners in Tuk
Cijfers voor postcodegebied 8334
- tot 15 jaar
- 20%
- 15 tot 25 jaar
- 9%
- 25 tot 35 jaar
- 24%
- 45 tot 65 jaar
- 28%
- 65 en ouder
- 18%
Huishoudens in Tuk
Cijfers voor postcodegebied 8334
- Eenpersoons zonder kinderen
- 24%
- Meerpersoons zonder kinderen
- 36%
- Huishoudens zonder kinderen
- 60%
Huishoudens in Tuk
Cijfers voor postcodegebied 8334
- Huishoudens met één kind
- 5%
- Huishoudens met meerdere kinderen
- 36%
- Huishoudens met kinderen
- 41%
Woningen in Tuk
Cijfers voor postcodegebied 8334
- Woningen voor 1945
- 15%
- Woningen tussen 1945 en 1965
- 9%
- Woningen tussen 1965 en 1975
- 18%
- Woningen tussen 1975 en 1985
- 10%
- Woningen tussen 1985 en 1995
- 6%
Woningen in Tuk
Cijfers voor postcodegebied 8334
- Woningen tussen 1995 en 2005
- 11%
- Woningen tussen 2005 en 2015
- 20%
- Woningen na 2015
- 11%
- Huurwoningen
- 10%
- Koopwoningen
- 90%
Overige in Tuk
Cijfers voor postcodegebied 8334
- Gemiddelde WOZ waarde
- € 263.000,-
- Personen onder de 65 met uitkering
- 4%
Overige in Tuk
Cijfers voor postcodegebied 8334
- Adressen per km²
- 331
- Stedelijkheid (schaal 1 op 5)
- 20%
Mijn Makelaar Steenwijk
Indien u vragen heeft of u wilt een bezichtiging inplannen, dan kunt u gebruik maken van het formulier hiernaast. Er zal daarna op korte termijn contact met u worden opgenomen.
Burg. Goeman Borgesiusstraat 11
8331 JZ, Steenwijk
0521 - 516 463 steenwijk@mijnmakelaar.nl www.mijnmakelaarsteenwijk.nlContact opnemen
Al 40 jaar een begrip in Steenwijk en omgeving!
Wij staan klaar om uw woonambities te verwezenlijken. Of het nu gaat om een groot of klein project, de aan- of verkoop van een woning is een diepgaand proces. Wij hechten waarde aan directe communicatie en toewijding gedurende dit proces, zodat u tevreden uw woning kunt verkopen of uw ideale huis kunt bemachtigen. Onze inzet voor u is een gegeven. Door onze eerlijke en heldere aanpak bent u altijd op de hoogte. Ons unieke courtage-systeem zorgt ervoor dat u de juiste prijs betaalt. Zijn wij wat u zoekt? We maken graag een afspraak om uw doelen te verkennen.
Nieuwste reviews
-
Veenlanden 18
Het contact met de makelaar was prima.Duidelijk uitleg hoe alles in z'n werk gaat. Alles is volgens plan gelopen. Tevreden dus.
-
Potgieterstraat 2
Zeer prettig contact gehad. Nam rustig de tijd om alles uit te leggen. Ook vlot verkocht en alles goed ingeschat.
-
Gerardus Majellahof 4
Fijne betrokken makelaar zonder poespas en recht door zee. Wij kunnen Mieke van mijnmakelaar in Steenwijk zeer zeker aanraden.